top of page
Kurssi /
Korjaussuunnittelu
Tilan koko /
73m2
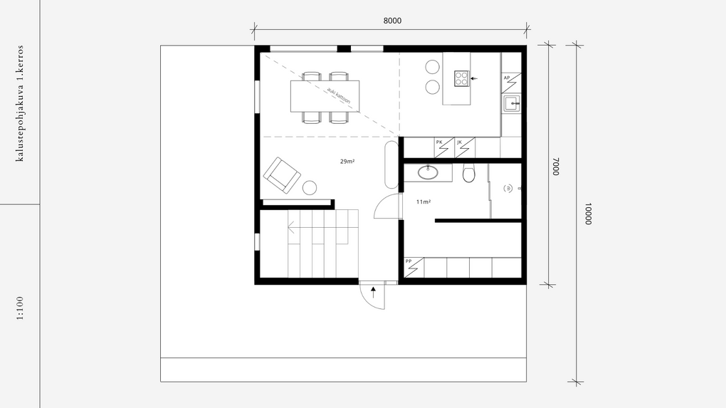
Rintamamiestalon uudelleen saneeraus. Talo on rakennettu vuonna 1937, joka tuo omia rakenteellisia ominaisuuksiaan mm. vilpolan, jykevät tulipisteet ja märkätilan puuttumisen. Suunnittelussa joutui siis paljon miettimään kuinka tuoda talo toimimaan nykypäivän tarpeisiin.
Suunnitelmassani vilpola ja seinärakenteita puretaan, jotta talosta tulisi mahdollisimman minimalistinen rakenteellisesti. Ruokailutilasta tulee avara ja valoisa sillä se on auki kattoon asti. Katon toinen yksityiskohta on paikalleen jäävät poikkipuut, jotka pääsevät oikeuksiinsa yläkerran tiloissa. Kurssitehtävä erosi vahvasti muista kursseistamme sillä rakensimme myös pienoismallit suunnitelmiemme mukaisesti.
bottom of page











